3 Bedroom 2 Bathroom Villa in Calpe
77-527-115-10-115/69523 - 3 Bedroom 2 Bathroom Villa in Calpe
Description
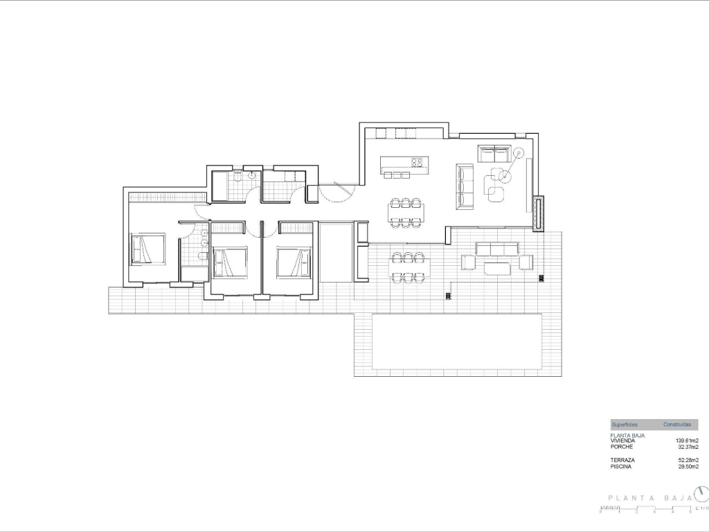
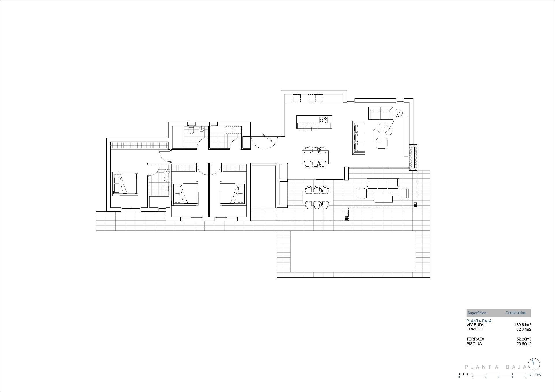
Villa, New Build NEW BUILD VILLA IN CALPE New Build villa located in one of the residential areas preferred by all the residents of Calpe, due to its proximity to the town centre, the beaches and at the same time because it is a quiet but safe area, as it is located on the outskirts of the town centre. The property has been planned on a single floor, which makes this project practical and comfortable. The whole plot is fenced and has a hedge of cypress trees inside, which provides privacy and a pleasant environment. From the main entrance to the house we access to a hall, from which to the left we access to the day area, consisting of a living room with dining room and open kitchen with island. From the living room we can access to the outside, where we have a covered porch area with barbecue and a large terrace with swimming pool of 40m2. On the right hand side of the house is the sleeping area, with 4 bedrooms: the master suite with dressing room and bathroom, another bedroom with en-suite bathroom and two further bedrooms sharing a bathroom. There is also a laundry area. Outside there is a parking area with a pergola in the form of a sail for two cars. Calpe, one of the towns of La Marina Alta, lies on the northern coast of the province of Alicante, surrounded by the towns of Altea, Benidorm, Teulada-Moraira, Benissa. Calpe has a wonderful mixture of old Valencian culture and modern tourist facilities. It is a great base from which to explore the local area or enjoy the many local beaches. Calpe alone has three of the most beautiful sandy beaches on the coast. Calpe also has two Sailing Clubs: Real Club Náutico de Calpe and Club Náutico de Puerto Blanco. Fishing village of Calpe now transformed into a tourist magnet, the town sits in an ideal location, easily accessed by the A7 motorway and the N332 that runs from Valencia to Alicante; its approximately 1 hour drive from the airport at Alicante and 1,5 hours to Valencias airport.Buy with confidence
We are a family company who located to Spain from Lancashire in 2003 and in 2006 We created Live Med Coast Sl. and have specialised over the last 19 years assisting people like yourselves to find their ideal home here in Spain.
You will find our service professional and yet relaxed with no pressure as we fully understand the purchasing of a property can be stressful enough when buying in your own country let alone a property abroad. And for this reason, we offer the complete service not only the sourcing of the property, but we assist in all matters of the process and then we pride ourselves on our aftersales service which you can see in the testimonials we have received and on Google with a 4.9* rating. And will always be attended & looked after by a family member. For further piece of mind, we are signed to AIPP code of practices Since March 2018.
