2 Bedroom 1 Bathroom Villa in Fuente Álamo
40-607-115-10-115/72866 - 2 Bedroom 1 Bathroom Villa in Fuente Álamo
Description
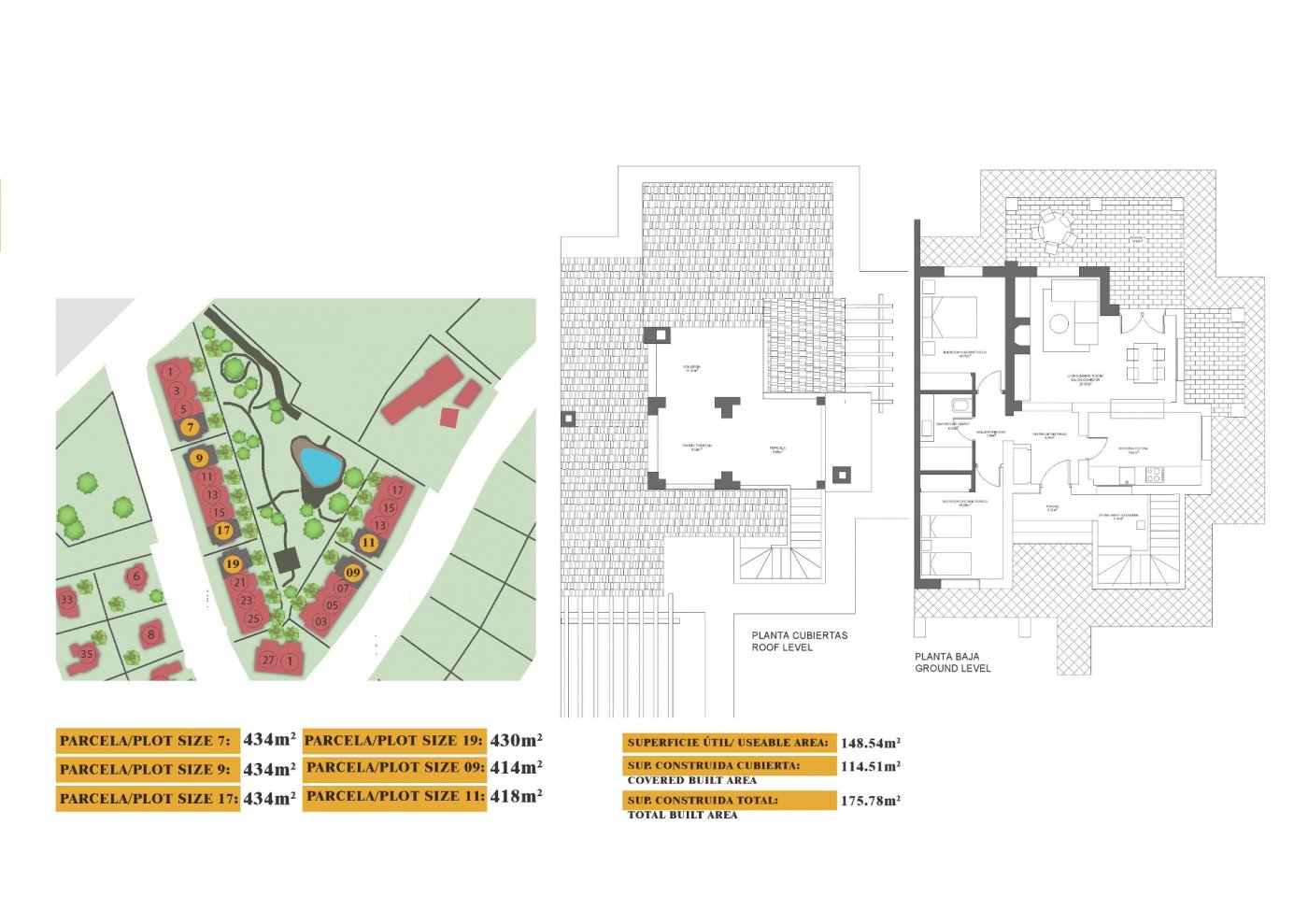
Villa, New Build KEY READY SEMI-DETACHED VILLA IN FUENTE ALAMO, MURCIA Residential of townhouses, independent and semi-detached villas in Fuente Álamo, Murcia. There are seven different models of houses to choose from, designed to suit everyone’s taste. Rustic designs combined with top quality materials and a focus on comfortable living space there is something for everyone. The residents of this private community of beautiful, spacious homes will also be able to enjoy their own communal gardens and swimming pools. This unusual design semi-detached villa has 2 bedrooms and 1 bathroom, independent kitchen, living room with patio doors leading onto the covered porch and semi covered roof top terrace. An options for a private pool at an extra cost. Fuente Álamo de Murcia is a town and municipality in the Region of Murcia, southern Spain. It is situated 22 km northwest of Cartagena and 35 km south west of Murcia. The town lies in the basin of the Mar Menor surrounded by the mountains of Algarrobo, Los Gómez, Los Victorias and the Carrascoy. The water from these mountains flows down into the Rambla de Fuente Álamo and then onto the Mar Menor. Fuente Álamo located 30 minutes from Murcia - Corvera airport.Buy with confidence
We are a family company who located to Spain from Lancashire in 2003 and in 2006 We created Live Med Coast Sl. and have specialised over the last 19 years assisting people like yourselves to find their ideal home here in Spain.
You will find our service professional and yet relaxed with no pressure as we fully understand the purchasing of a property can be stressful enough when buying in your own country let alone a property abroad. And for this reason, we offer the complete service not only the sourcing of the property, but we assist in all matters of the process and then we pride ourselves on our aftersales service which you can see in the testimonials we have received and on Google with a 4.9* rating. And will always be attended & looked after by a family member. For further piece of mind, we are signed to AIPP code of practices Since March 2018.
